15880 101st Circle, SUMMERFIELD, FL 34491
- MLS#: OM711525 ( Residential )
- Street Address: 15880 101st Circle
- Viewed: 14
- Price: $262,990
- Price sqft: $198
- Waterfront: No
- Year Built: 2025
- Bldg sqft: 1328
- Bedrooms: 3
- Total Baths: 2
- Full Baths: 2
- Garage / Parking Spaces: 2
- Days On Market: 55
- Additional Information
- Geolocation: 28.9915 / -81.9857
- County: MARION
- City: SUMMERFIELD
- Zipcode: 34491
- Subdivision: Sunset Hills
- Elementary School: Harbour View Elementary School
- Middle School: Lake Weir Middle School
- High School: Lake Weir High School
- Provided by: DR HORTON REALTY OF WEST CENTRAL FLORIDA
- Contact: Anne Peterson Eger
- 352-414-3365

- DMCA Notice
-
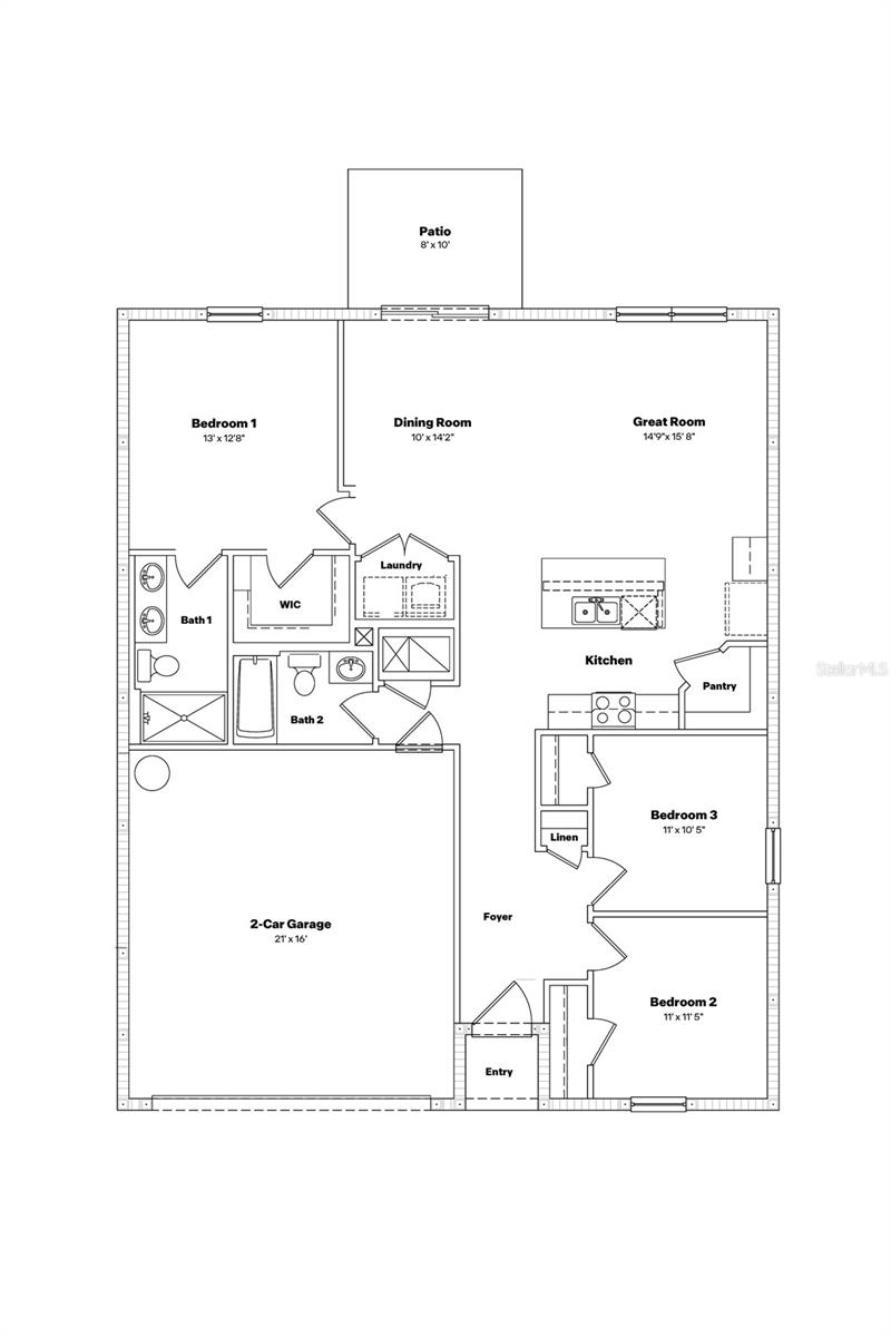
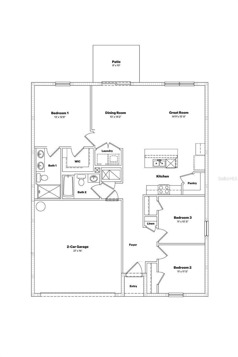
DescriptionUnder Construction. This single story, all concrete block constructed 3 bedroom, 2 bathroom home features an open concept floorplan that optimizes living space. The spacious kitchen overlooks the great room, dining area, and outdoor patio. The kitchen comes full equipped with stainless steel appliances including a built in dishwasher, range, and microwave. The primary suite is located towards the back of the home, featuring a spacious walk in closet and ensuite bathroom with double vanity sinks. Two additional bedrooms are located towards the front of the home and share a bathroom across the hall. Pictures, photographs, colors, features, and sizes are for illustration purposes only and will vary from the homes as built. Home and community information including pricing, included features, terms, availability and amenities are subject to change and prior sale at any time without notice or obligation. CRC057592.






























